Standart Ray Adaptörünün Takılması
Giriş
Montaj rayı adaptörü, SIMATIC S7-1500 / ET 200MP otomasyon sistemini standart 35 mm montaj raylarına monte etmenizi sağlar.
DIN rayı adaptörünü ayrı aksesuarlar olarak sipariş edebilirsiniz.
Not
S7-1500 / ET 200MP modüllerini standart montaj rayı adaptörünü kullanarak 35 mm standart montaj rayına takarken, mekanik yük ile ilgili aşağıdaki azaltılmış teknik özelliklere dikkat edin:
Titreşim testi acc. IEC 60068-2-6'ya (sinüsoidal)
• 5 Hz ≤ f ≤ 8,4 Hz, sabit genlik 3,5 mm
• 8,4 Hz ≤ f ≤ 150 Hz, sabit hızlanma 1 g
Titreşim süresi: Üç dikey eksenin her birinde eksen başına 10 frekans taraması
Şok, IEC 60068-2-27 uyarınca test edilmiştir
• Şok tipi: Yarım sinüs
• Şok yoğunluğu: 150 m / s2 tepe değeri, 11 ms süre
• Şok yönü: Üç dik eksenin her birinde +/- yönde 3 şok
Makale numarası.
6ES7590-6AA00-0AA0
Teslimat kapsamı on adaptör, on altıgen soket başlı vida ve on puldan oluşur.
Görünüm
DIN rayı adaptörü bir kelepçe, bir adaptör çerçevesi ve rondelalı bir altıgen soket başlı vidadan oluşur.

1 - Kelepçe
2 - Adaptör çerçevesi
3 - Altıgen başlı vida
4 - Pul
Şekil 1 - DIN rayı adaptörünün parçaları
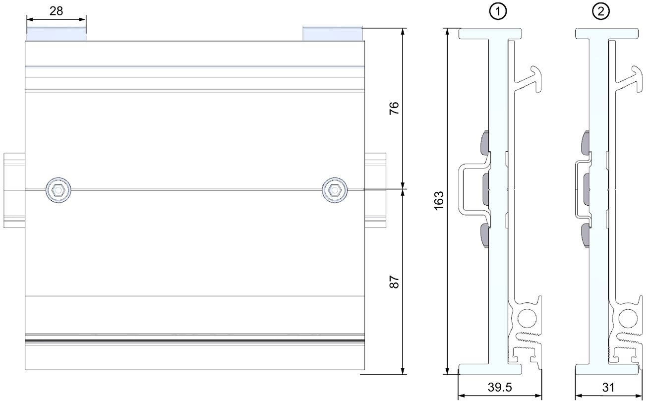
Boyutsal çizim

DIN 35 mm x 7,5 mm standart DIN rayına montaj sırasında adaptör çerçevesinin konumu
DIN 35 mm x 15 mm standart DIN rayına montaj sırasında adaptör çerçevesinin konumu
Şekil 2 - Boyutlu çizim
Gerekli aletler
EN ISO 4762'ye (DIN 912) göre M6 altıgen soket başlı vida M6 ile eşleşen anahtar.
Özellikleri
● Standart montaj rayı adaptörü, S7-1500 / ET200MP montaj rayının standart 35 mm montaj raylarına monte edilmesini mümkün kılar.
● DIN rayı adaptörü, prefabrike kontrol kabini ve terminal kutusu sistemlerinin kullanımına izin verir.
● S7-1500 / ET 200 MP montaj rayının toplam uzunluğu eskisi gibi tamamen tekrar kullanılabilir.
● En iyi stabiliteyi sağlamak için, iki DIN rayı adaptörü arasındaki boşluk 250 mm veya daha az olmamalıdır.

Şekil 3 - İki DIN rayı adaptörü arasındaki mesafe
Not
Montaj rayı genişliğine bağlı olarak, montaj rayı adaptörünün matkap delikleri nedeniyle her bir tarafta 4 mm'ye kadar çıkabileceğini unutmayın.
Çeşitli DIN rayları için çıkıntı boyutlarının genel bir görünümünü aşağıdaki tabloda bulabilirsiniz.
Tablo 3 Gerekli ek yanal boşluk
| Montaj rayı | Makale numarası | Adaptörle gerekli ek alan |
| • 160,0 mm (delikli) | 6ES7590-1AB60-0AA0 | 4 mm |
| • 245,0 mm (delikli) | 6ES7590-1AC40-0AA0 | 4 mm |
| • 482,6 mm (delikli) | 6ES7590-1AE80-0AA0 | 8 mm |
| • 530,0 mm | 6ES7590-1AF30-0AA0 | 0 mm |
| • 830,0 mm (delikli) | 6ES7590-1AJ30-0AA0 | 0 mm |

Şekil 4 - DIN rayı adaptör çıkıntısı
Prosedür
35 mm x 7,5 mm standart DIN rayına montaj
DIN rayı adaptörünü 35 mm x 7,5 mm standart DIN rayına takmak için şu adımları izleyin:
1. Kelepçeyi standart DIN rayına yerleştirin.
2. Adaptör çerçevesinin en kısa enine kenarı kabine veya kutu duvarına (2) dönük.
3. S7-1500 / ET 200MP montaj rayını adaptör çerçevesine, S7-1500 / ET 200MP montaj rayındaki oyuk adaptör çerçevesindeki oyuğa uyacak şekilde yerleştirin. S7-1500 / ET 200MP montaj rayını adaptör çerçevesi kelepçeye (4) yerleştirin.
4. S7-1500 / ET 200 montaj MP montaj rayını montaj rayı adaptörü ve standart montaj rayı (5 - sıkma torku 6 Nm) ile birlikte vidalayın.

Şekil 5 - DIN rayı adaptörünün DIN rayına montaj sırası 35 mm x 7.5 mm veya 35 mm x 15 mm
35 mm x 15 mm standart DIN rayına montaj
DIN rayı adaptörünü 35 mm x 15 mm standart DIN rayına takmak için şu adımları izleyin:
1. Kelepçeyi standart DIN rayına yerleştirin.
2. Adaptör çerçevesinin daha uzun enine kenarı kabin veya kutu duvarını (3) gösterir.
3. S7-1500 / ET 200MP montaj rayını adaptör çerçevesine, S7-1500 / ET 200MP montaj rayındaki oyuk adaptör çerçevesindeki oyuğa uyacak şekilde yerleştirin. S7-1500 / ET 200MP montaj rayını adaptör çerçevesi kelepçeye (4) yerleştirin.
4. S7-1500 / ET 200 montaj MP montaj rayını montaj rayı adaptörü ve standart montaj rayı (5 - sıkma torku 6 Nm) ile birlikte vidalayın.
Your email address cannot be published. Required fields are marked*



No comments